
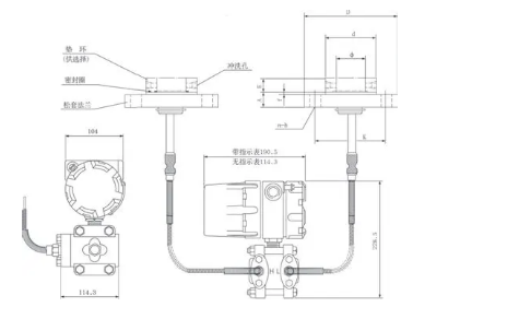
雙法蘭變送器由差壓變送器,毛細管和帶密封隔膜的雙法蘭組成。密封隔膜的作用是防止管道中的介質直接進入差壓變送器,它與變送器之間是靠注滿液體的毛細管連接起來的。當膜片受壓后產生微小變形,變形位移或頻率通過毛細管的液體傳遞給變送器,由變送器處理后轉換成輸出信號可用于測量液體、氣體和蒸汽的流量,以及液位、密度和壓力等。雙法蘭變送器在實際應用中比較廣泛。
雙法蘭變送器由差壓變送器,毛細管和帶密封隔膜的雙法蘭組成。密封隔膜的作用是防止管道中的介質直接進入差壓變送器,它與變送器之間是靠注滿液體的毛細管連接起來的。當膜片受壓后產生微小變形,變形位移或頻率通過毛細管的液體傳遞給變送器,由變送器處理后轉換成輸出信號可用于測量液體、氣體和蒸汽的流量,以及液位、密度和壓力等。雙法蘭變送器在實際應用中比較廣泛。
1、雙法蘭液位變送器檢查
①雙法蘭檢查:檢查雙法蘭與設備連接部分的密封是否良好;法蘭與毛細管、毛細管與變送器的連接部分及毛細管本身是否有液體泄漏,泄露點在什么位置;法蘭膜片有無變形、損傷、腐蝕、結垢等不良情況,仔細檢查。
②變送器檢查
a、變送器外觀檢查:檢查變送器外殼有無損傷、腐蝕和其他故障。
b、變送器內部檢查:打開變送器外蓋,先檢查密封圈有無損壞,如果損壞要及時更換;檢查電路板及其他元器件是否良好。
c、檢查變送器接線情況是否良好。
d.斷開電源,卸下接線,進行絕緣電阻檢查,用500V兆歐表檢查變送器接線端子與外殼間的絕緣電阻是否正常,該電阻值應大于2OMΩ以上。
2、雙法蘭液位變送器檢修
①雙法蘭式差壓變送器的檢修周期一般為生產裝置的一個運行周期。
②儀表與設備連接部位有排污孔的應拆開堵頭進行吹掃(吹掃時應注意不要用蒸汽對著法蘭膜片)。
③儀表與設備連接部位無排污孔的應拆開法蘭進行吹掃。
④檢查零部件有無腐蝕磨損、變形和滲漏,情況嚴重者應更換。
3、雙法蘭變送器常見故障與處理
故障現象:雙法蘭液位變送器無顯示
故障原因:信號線脫落或電源故障
處理方法:重新接線或處理電源故障
故障現象:雙法蘭液位變送器顯示為最大
故障原因:①低壓側、膜片、毛細管或封入液泄漏;②低壓側(高壓側)放空引壓閥沒有打開;③低壓側(高壓側)放空引壓堵頭。
處理方法:①更換儀表;②打開引壓閥;③清理雜物或更換引壓閥,檢查堵塞部分,進行疏通。
故障現象:雙法蘭液位變送器顯示偏大
故障原因:①低壓側(高壓側)放空堵頭漏或引壓閥沒有打開;②儀表未校對,零點不準;
處理方法:①緊固放空堵頭,打開引壓閥;②重新校對儀表。
故障現象:雙法蘭液位變送器顯示無變化
故障原因:①高低壓側膜片或毛細管同時損壞,正負壓側引壓管堵塞;②電路板損壞。
處理方法:①更換儀表,疏通正負壓側引壓管;②更換電路板。
4、綜上所述:
雙法蘭變送器實質上是一種特殊取壓的差壓變送器。它是在差壓變送器正,負室取壓口上接上二條紫銅毛細管,末端是兩個用不銹鋼膜片封閉的、固定在安裝法蘭上的膜盒上。
膜盒與毛細管和差壓變送器正、負壓室,內部采用真空充填方法充硅油,而它們之間則用外套螺母、接管和接頭緊密聯接起來。這樣在測量液位時,通過感壓膜盒上的不銹鋼波紋膜片感測的壓力,由硅油傳遞至差壓變送器的正、負壓室,從而檢測壓力數值。以上就是雙法蘭變送器的詳情介紹,更多產品內容詳情請關注“壓力變送器”欄目。